Beschreibung
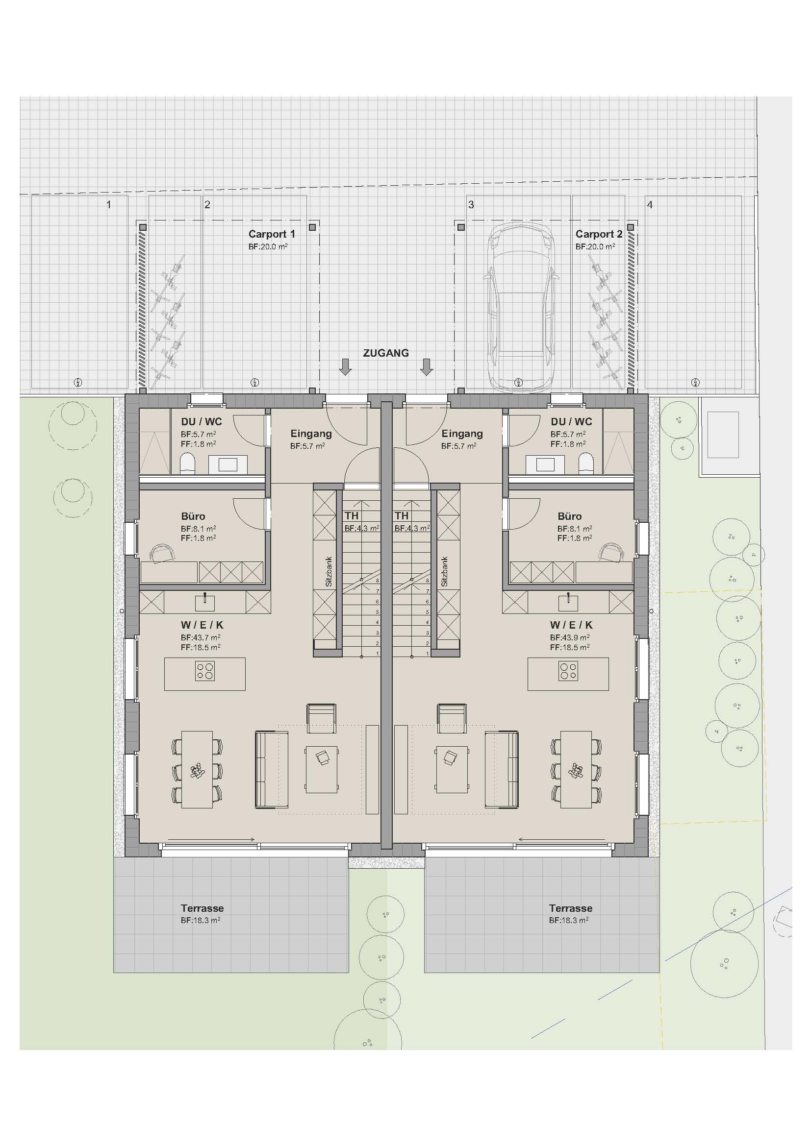
An der Weissenaustrasse 18 in Unterseen entsteht ein exklusives Doppeleinfamilienhaus mit 4.5 bis 5.5 Zimmern. Jede Haushälfte überzeugt mit einem offenen, lichtdurchfluteten Wohn- und Essbereich, einer modernen Küche sowie grosszügigen Fensterfronten mit spektakulärer Bergsicht.
Elegantes Design, hochwertige Materialien und ein durchdachter Grundriss schaffen ein stilvolles Zuhause, das Komfort und Behaglichkeit perfekt verbindet. Das bewilligte Projekt bietet Ihnen modernes Wohnen in Top-Lage, naturnah und doch zentrumsnah.
Für individuelle Wünsche und persönliche Beratung vereinbaren wir gerne einen Termin mit Ihnen.
Elegantes Design, hochwertige Materialien und ein durchdachter Grundriss schaffen ein stilvolles Zuhause, das Komfort und Behaglichkeit perfekt verbindet. Das bewilligte Projekt bietet Ihnen modernes Wohnen in Top-Lage, naturnah und doch zentrumsnah.
Für individuelle Wünsche und persönliche Beratung vereinbaren wir gerne einen Termin mit Ihnen.
Lage
Das Doppeleinfamilienhaus an der Weissenaustrasse 18 liegt an privilegierter Lage in Unterseen, am Fusse von Eiger, Mönch und Jungfrau. Eingebettet zwischen Thuner- und Brienzersee vereint es naturnahe Ruhe mit der Nähe zum lebendigen Zentrum von Interlaken. Spazierwege entlang der Aare und ins Naturschutzgebiet Weissenau beginnen fast vor der Haustüre, das historische Stedtli und die Promenaden von Interlaken sind in wenigen Minuten erreichbar.
Unterseen ist optimal erschlossen: Der Bahnhof Interlaken West liegt nur rund 1,2 km entfernt, die A8 erreichen Sie in wenigen Fahrminuten. Die Gemeinde bietet Einkaufsmöglichkeiten, Schulen, Ärzte, Restaurants und ein vielfältiges Freizeitangebot, von Wassersport über Golf bis zu Skiregionen wie Grindelwald oder Wengen.
Ganzjährig profitieren Sie zudem von einem breiten Kultur-, Sport- und Gastronomieangebot sowie der Nähe zum Spital Interlaken.
Unterseen ist optimal erschlossen: Der Bahnhof Interlaken West liegt nur rund 1,2 km entfernt, die A8 erreichen Sie in wenigen Fahrminuten. Die Gemeinde bietet Einkaufsmöglichkeiten, Schulen, Ärzte, Restaurants und ein vielfältiges Freizeitangebot, von Wassersport über Golf bis zu Skiregionen wie Grindelwald oder Wengen.
Ganzjährig profitieren Sie zudem von einem breiten Kultur-, Sport- und Gastronomieangebot sowie der Nähe zum Spital Interlaken.
Gemeinde
Unterseen ist ein paradiesisches Dorf im Berner Oberland und liegt am östlichen Ufer des Thunersees. Dieses bezaubernde Dorf bietet eine reiche Geschichte, atemberaubende Natur und eine entspannte Atmosphäre, die es zu einem beliebten Ziel für Reisende und Einheimische gleichermassen macht.
Unterseen hat eine lange und faszinierende Geschichte, die bis ins Mittelalter zurückreicht. Das historische Zentrum des Dorfes ist geprägt von gut erhaltenen Gebäuden im traditionellen Berner Stil und engen, gepflasterten Gassen. Das Wahrzeichen von Unterseen ist die Stadtkirche St. Andreas, die aus dem 13. Jahrhundert stammt und ein beeindruckendes Beispiel mittelalterlicher Architektur ist. Die Lage von Unterseen ist von natürlicher Schönheit geprägt. Das Dorf liegt am Ufer des kristallklaren Thunersees und wird von majestätischen Bergen umgeben. Diese malerische Kulisse bietet zahlreiche Möglichkeiten für Outdoor-Aktivitäten wie Wandern, Radfahren, Bootsfahrten und Wassersport. Unterseen bietet eine Vielzahl von Aktivitäten für Besucher. Sie können das Freilichtmuseum Ballenberg besuchen, historische Dampfschifffahrten auf dem Thunersee unternehmen, in den lokalen Geschäften und Restaurants stöbern oder einfach nur die Ruhe und Schönheit der Umgebung geniessen. Das Dorf ist gut an das regionale Verkehrsnetz angeschlossen. Der Bahnhof Interlaken West bietet bequeme Zugverbindungen zu den umliegenden Städten. Unterseen veranstaltet das ganze Jahr über verschiedene kulturelle Veranstaltungen und Festivals, die Besucher aus der ganzen Welt anlocken. Dazu gehören traditionelle Märkte, Konzerte und lokale Feiern. Unterseen ist ein Ort, der Geschichte und Natur in perfekter Harmonie vereint. Es ist der ideale Ausgangspunkt, um die Schweizer Alpen und die umliegenden Städte zu erkunden. Egal, ob Sie die historischen Sehenswürdigkeiten erkunden oder die atemberaubende Landschaft geniessen möchten, Unterseen bietet für jeden etwas Besonderes. Willkommen in diesem charmanten Dorf am Thunersee, wo die Zeit scheinbar stillsteht und die Schönheit der Schweizer Alpen zum Greifen nah ist.
Unterseen hat eine lange und faszinierende Geschichte, die bis ins Mittelalter zurückreicht. Das historische Zentrum des Dorfes ist geprägt von gut erhaltenen Gebäuden im traditionellen Berner Stil und engen, gepflasterten Gassen. Das Wahrzeichen von Unterseen ist die Stadtkirche St. Andreas, die aus dem 13. Jahrhundert stammt und ein beeindruckendes Beispiel mittelalterlicher Architektur ist. Die Lage von Unterseen ist von natürlicher Schönheit geprägt. Das Dorf liegt am Ufer des kristallklaren Thunersees und wird von majestätischen Bergen umgeben. Diese malerische Kulisse bietet zahlreiche Möglichkeiten für Outdoor-Aktivitäten wie Wandern, Radfahren, Bootsfahrten und Wassersport. Unterseen bietet eine Vielzahl von Aktivitäten für Besucher. Sie können das Freilichtmuseum Ballenberg besuchen, historische Dampfschifffahrten auf dem Thunersee unternehmen, in den lokalen Geschäften und Restaurants stöbern oder einfach nur die Ruhe und Schönheit der Umgebung geniessen. Das Dorf ist gut an das regionale Verkehrsnetz angeschlossen. Der Bahnhof Interlaken West bietet bequeme Zugverbindungen zu den umliegenden Städten. Unterseen veranstaltet das ganze Jahr über verschiedene kulturelle Veranstaltungen und Festivals, die Besucher aus der ganzen Welt anlocken. Dazu gehören traditionelle Märkte, Konzerte und lokale Feiern. Unterseen ist ein Ort, der Geschichte und Natur in perfekter Harmonie vereint. Es ist der ideale Ausgangspunkt, um die Schweizer Alpen und die umliegenden Städte zu erkunden. Egal, ob Sie die historischen Sehenswürdigkeiten erkunden oder die atemberaubende Landschaft geniessen möchten, Unterseen bietet für jeden etwas Besonderes. Willkommen in diesem charmanten Dorf am Thunersee, wo die Zeit scheinbar stillsteht und die Schönheit der Schweizer Alpen zum Greifen nah ist.
Bemerkungen
Die Notar- und Grundbuchkosten, sowie allfällige Handänderungssteuern, gehen vollumfänglich zu Lasten der Käuferschaft.
Eigenschaften
Umgebung
- Dorf
- Berge
- See
- Geschäfte
- Einkaufsmöglichkeiten
- Bank
- Post
- Restaurant(s)
- Apotheke
- Bahnhof
- Bushaltestelle
- Autobahnanschluss
- Kinderfreundlich
- Spielplatz
- Kinderkrippe
- Kindergarten
- Primarschule
- Sekundarschule
- Kantonsschule/Gymnasium
- Freibad
- Golfplatz
- Tennis Zentrum
- Skigebiet
- Hallenbad
- Wanderwege
- Radweg
- Museum
- Kino
- Veranstaltungsort
- Krankenhaus / Klinik
- Arzt
- Pflegeheim
Aussenbereich
- Garten
- Gartensitzplatz
- Ruhige Lage
- Parkplatz
- Carport
Innenbereich
- Keller
- Einbauschrank
- Dreifachverglasung
- Hell
Ausstattung
- Moderne Küche
- Waschmaschine
- Wäschetrockner
- Secomat
- Badewanne
- Dusche
- Internetanschluss
Besonnung
- Gut
- Ganzer Tag besonnt
Aussicht
- Schöne Aussicht
- Berge
- Alpen
Distanzen
Bahnhof
900 m
Öffentliche Verkehrsmittel
80 m
Kindergarten
1 km
Primarschule
1 km
Sekundarschule
1 km
Kantonsschule/Gymnasium
2.3 km
Geschäfte
800 m
Post
950 m
Bank
800 m
Krankenhaus
70 m
Restaurants
350 m
Park / Grünfläche
1 km











